Autograph Four

Autograph Four

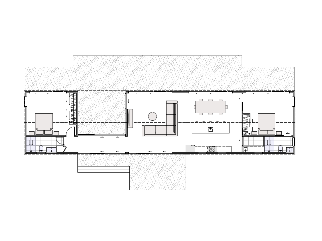
The most cost effective home is a rectangular shaped one. This minimises cladding and roofing corners and junctions, but by using nicely specified cladding, roofing and colors, the home doesn’t need to look boring. The Autograph Four is far from that. With private bedrooms at either end of the home, each with dedicated bathrooms, and a covered outdoor nook tucked away from the elements, this is perfect for rural, coastal or city scenes. 

Customisable
To Suit You.

Floor Area

136m2

Bedrooms

2

Bathrooms

2

Key Features

Sheltered deck nook
Open plan living with dual views
Private sleeping suites 
2.7m stud with raking ceilings

autograph-four-floor-plan-collection-arcline-architecture

Hands on experience you can trust.

Call Us Today: 0800 326 466

Scroll to Top